3 2 1
YOUR NEXT CHAPTER STARTS HERE... Located in the heart of Mansfield, this beautifully presented three-bedroom detached bungalow is situated within an exclusive gated development for the over 50s. Offering privacy, comfort, and a strong sense of community, the development is conveniently close to...
Plot 31, The Dove, Rock Valley, Mansfield
£360,000
YOUR NEXT CHAPTER STARTS HERE... Located in the heart of Mansfield, this beautifully presented three-bedroom detached bungalow is situated within an exclusive gated development for the over 50s. Offering privacy, comfort, and a strong sense of community, the development is conveniently close to local shops, amenities, and excellent transport links. Inside, a welcoming hallway leads to a modern kitchen fitted with integrated appliances and bi-fold doors opening onto the rear garden, creating a bright and inviting space. The spacious living room features dual-aspect windows, offering a cosy yet airy atmosphere. The master bedroom overlooks the garden and includes French doors and a stylish ensuite with a walk-in shower and modern fittings. There is a second double bedroom with built-in storage and a versatile third bedroom suitable as a guest room or home office. The family bathroom features a contemporary four-piece suite with both bath and separate shower. Outside, the property benefits from a landscaped front garden, private driveway, attached garage, and a fully enclosed rear garden with lawn and patio—perfect for relaxing or entertaining. This bungalow offers a superb opportunity for low-maintenance living in a secure, peaceful community. Call now to arrange a viewing – 01623 633633!
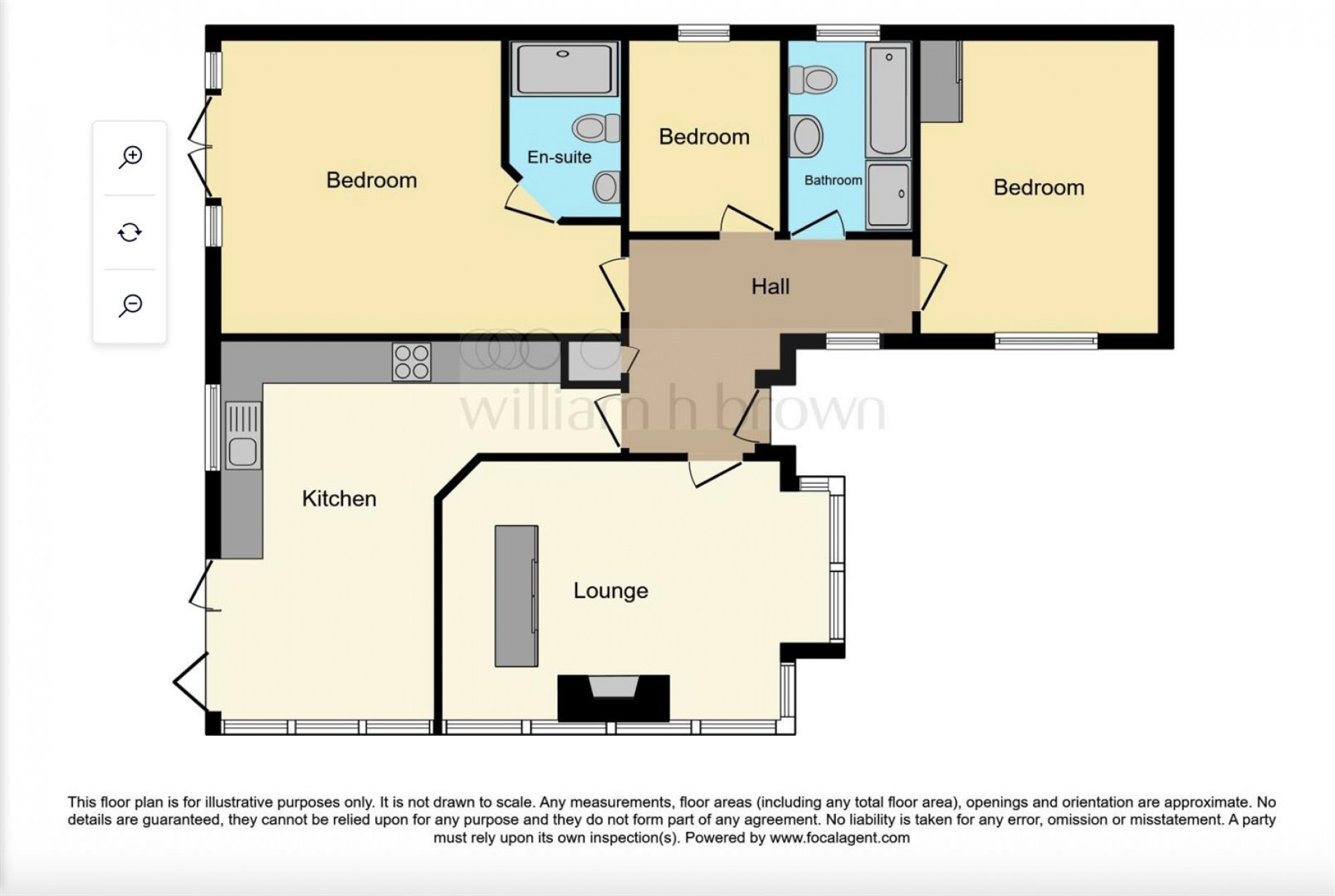
Step into a thoughtfully designed hallway that provides seamless access to all rooms within the home. Its layout sets the tone for the rest of the property, offering a welcoming entrance.
This beautifully presented modern kitchen features an elegant combination of wall and base units, topped with complementary work surfaces. An inset sink with mixer tap and drainer is perfectly positioned, while a full suite of integrated appliances, including an oven, electric hob with extractor hood, fridge/freezer, washer dryer, and dishwasher - ensures functionality meets style. Abundant natural light pours in from side windows and rear bi-fold doors, which open directly onto the garden, an ideal backdrop for summer dining or relaxed evenings.
Generous in size and filled with natural light from dual-aspect windows, the living room offers both brightness and a cosy retreat. It’s the perfect space to unwind or entertain in comfort and style.
A spacious and serene master bedroom, thoughtfully designed to offer both comfort and convenience. French doors open out to the rear garden, flooding the room with natural light and providing easy outdoor access. The room also benefits from a private ensuite, adding a touch of luxury to your daily routine.
Accessed via the master bedroom, the stylish ensuite features a sleek three-piece suite including a walk-in shower cubicle, modern vanity unit with wash basin, and low-level WC. Finished with high-end touches such as tiled walls and flooring, a chrome heated towel rail, and an illuminated mirror, this space is both practical and elegant.
Another generously sized bedroom, enjoying natural light from a front-facing window and offering built-in wardrobe storage. Ideal for guests or family members.
A versatile room that can be tailored to your needs, whether as a further guest bedroom, home office, or hobby space. A window to the side elevation brings in natural light.
Contemporary and sophisticated, the main bathroom boasts a luxurious four-piece suite. It includes a separate shower cubicle with tiled surround, a panelled bath, vanity unit with wash basin, and low-level WC. Stylish details such as tiled flooring, an illuminated mirror, and a chrome heated towel rail combine comfort and elegance. A rear-facing window provides natural light and ventilation.
Nestled within a sought-after gated development, this bungalow makes an immediate impression. The landscaped front garden and paved pathway lead to an inviting entrance, while a private driveway and attached single garage provide ample parking.
To the rear, a beautifully maintained garden offers a peaceful escape, complete with a lawned area, patio for outdoor dining, and secure fenced boundaries with rear gate access—the perfect spot to enjoy warm, sunny days.