View Location

For Sale
3 bedroom
House - Semi-Detached

Save to shortlist Remove from shortlist

Plot 34 The Willow High Oakham Ridge, Mansfield
£390,000

3 2 2

YOUR NEXT CHAPTER STARTS HERE!... Welcome to this stunning three-bedroom, three-storey semi-detached new build, located in the heart of High Oakham, Mansfield. Offering a spacious layout, contemporary finishes, and thoughtfully designed living spaces, this modern home is ideal for families and...

Plot 34 The Willow High Oakham Ridge, Mansfield
£390,000

YOUR NEXT CHAPTER STARTS HERE!... Welcome to this stunning three-bedroom, three-storey semi-detached new build, located in the heart of High Oakham, Mansfield. Offering a spacious layout, contemporary finishes, and thoughtfully designed living spaces, this modern home is ideal for families and professionals seeking stylish living in a highly desirable location. On entry, you are welcomed into a bright hallway with a convenient WC before stepping into the cozy living room—a comfortable retreat for relaxing with family or friends. The lower ground floor forms the true heart of the home, boasting a superb open-plan kitchen, family, and dining area. The modern kitchen is fitted with sleek units, a central island, and generous workspace—perfect for cooking and entertaining. The family area is bathed in natural light, with double doors opening directly onto the garden for seamless indoor-outdoor living. A dedicated dining space makes gatherings easy, while a separate utility room and an additional WC provide everyday practicality. A versatile store room completes this level, offering flexible space that can be adapted as a home office, gym, or hobby room to suit your lifestyle. The top floor hosts three well-proportioned bedrooms, including a master suite with a stylish en-suite bathroom. The remaining bedrooms are versatile and filled with natural light, complemented by a modern family bathroom designed for relaxation and convenience. Externally, this property offers excellent kerb appeal. To the front, a driveway and garage provide ample off-street parking. The rear garden is private and secure, featuring a patio seating area, a laid lawn, and surrounding fencing—ideal for both entertaining and family enjoyment. Combining space, style, and practicality across three storeys, this exceptional new build offers contemporary living at its finest in a sought-after area. Call today to view!!!


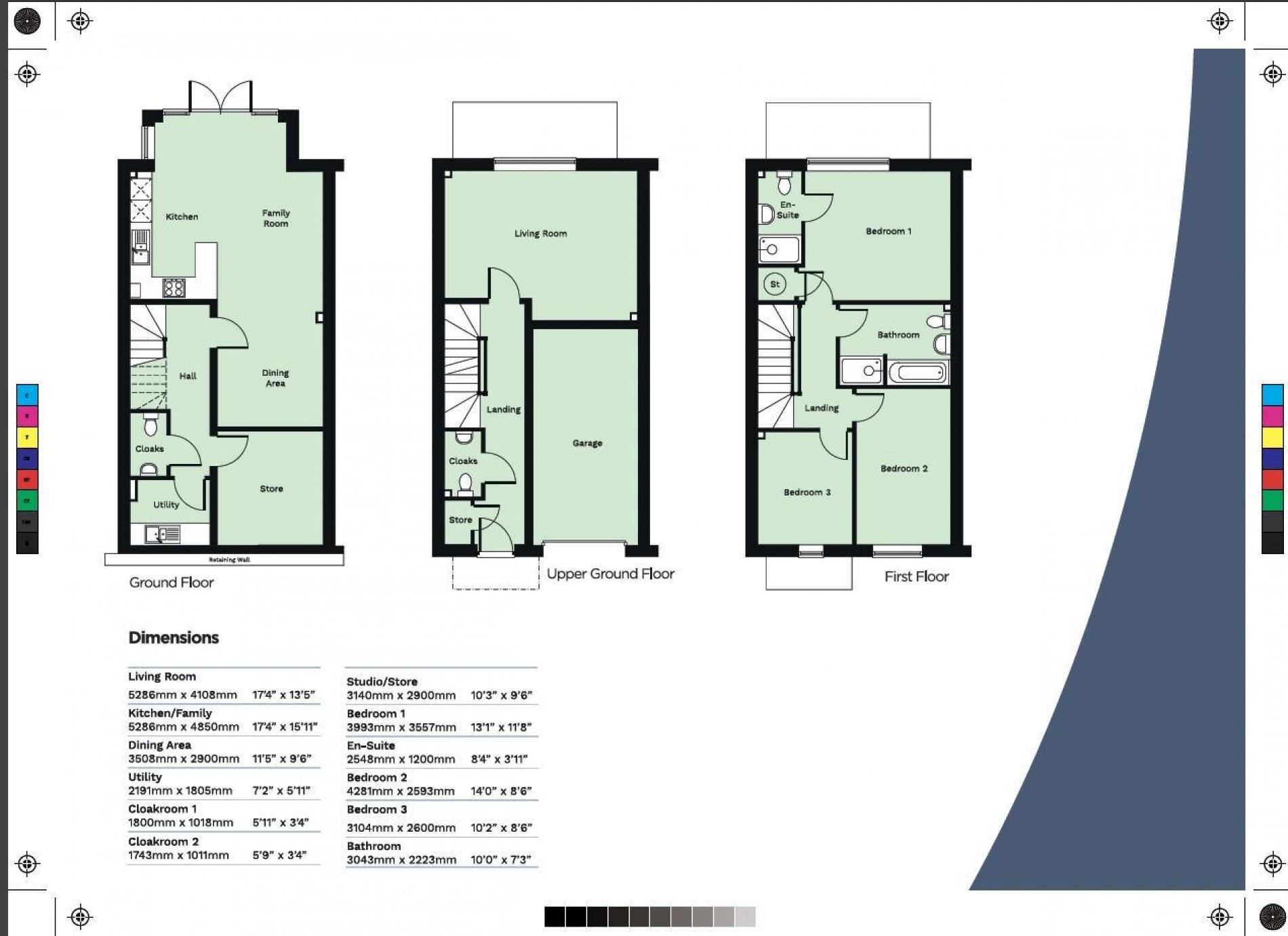
Entrance Hall

With stairs to the ground floor and first floor and surrounding doors providing access into;

WC (1.80m x 1.02m)

With a low flush WC and a hand wash basin.

Living Room (5.28m x 4.09m)

With a central heating radiator and windows to the rear elevation.

Hall

With access into;

Kitchen/ Family Room (5.28m x 4.85m)

The kitchen is complete with a range of matching cabinetry and ample worktop surfaces. It features an inset sink and drainer, integrated eye level double oven, electric hob with hood over, space for appliances and a central island. This room offers an open plan design through to the family room, with ample space for your furnishings and double doors opening onto the rear garden.

Dining Room (3.48m x 2.90m)

With a central heating radiator, ample space for your dining furniture and an open plan design.

Store (3.12m x 2.90m)

This versatile space can be utilised to suit your needs

Utility (2.18m x 1.80m)

With further cabinetry, worktop surfaces, inset sink and drainer and space for appliances.

WC (1.75m x 1.02m)

With a low flush WC and a hand wash basin.

Landing

With access into;

Bedroom One (3.99m x 3.56m)

With a central heating radiator, window to the rear elevation and its own private en-suite.

En-suite (2.54m x 1.19m)

Complete with a three piece suite including a shower, low flush WC and a hand wash basin.

Bedroom Two (4.27m x 2.59m)

With a central heating radiator and a window to the front elevation.

Bedroom Three (3.10m x 2.59m)

With a central heating radiator and a window to the front elevation.

Bathroom (3.05m x 2.21m)

Complete with a four piece suite including a bath, shower, low flush WC and a hand wash basin.

Outside

The front of the property offers ample off-street parking with a driveway and garage. The rear garden hosts a patio seating area, laid lawn and surrounding fencing.

Images for Plot 34 The Willow High Oakham Ridge, Mansfield
Images for Plot 34 The Willow High Oakham Ridge, Mansfield
Images for Plot 34 The Willow High Oakham Ridge, Mansfield
Images for Plot 34 The Willow High Oakham Ridge, Mansfield
Images for Plot 34 The Willow High Oakham Ridge, Mansfield
Images for Plot 34 The Willow High Oakham Ridge, Mansfield
Images for Plot 34 The Willow High Oakham Ridge, Mansfield
Images for Plot 34 The Willow High Oakham Ridge, Mansfield
Images for Plot 34 The Willow High Oakham Ridge, Mansfield
Images for Plot 34 The Willow High Oakham Ridge, Mansfield
Images for Plot 34 The Willow High Oakham Ridge, Mansfield
Images for Plot 34 The Willow High Oakham Ridge, Mansfield
Images for Plot 34 The Willow High Oakham Ridge, Mansfield
Images for Plot 34 The Willow High Oakham Ridge, Mansfield
Images for Plot 34 The Willow High Oakham Ridge, Mansfield
Images for Plot 34 The Willow High Oakham Ridge, Mansfield
Images for Plot 34 The Willow High Oakham Ridge, Mansfield
Images for Plot 34 The Willow High Oakham Ridge, Mansfield
Images for Plot 34 The Willow High Oakham Ridge, Mansfield
Images for Plot 34 The Willow High Oakham Ridge, Mansfield
Images for Plot 34 The Willow High Oakham Ridge, Mansfield
Images for Plot 34 The Willow High Oakham Ridge, Mansfield
Images for Plot 34 The Willow High Oakham Ridge, Mansfield
Images for Plot 34 The Willow High Oakham Ridge, Mansfield
Images for Plot 34 The Willow High Oakham Ridge, Mansfield
Images for Plot 34 The Willow High Oakham Ridge, Mansfield
Images for Plot 34 The Willow High Oakham Ridge, Mansfield
Images for Plot 34 The Willow High Oakham Ridge, Mansfield
Images for Plot 34 The Willow High Oakham Ridge, Mansfield
Images for Plot 34 The Willow High Oakham Ridge, Mansfield
Images for Plot 34 The Willow High Oakham Ridge, Mansfield
Images for Plot 34 The Willow High Oakham Ridge, Mansfield
Images for Plot 34 The Willow High Oakham Ridge, Mansfield
Images for Plot 34 The Willow High Oakham Ridge, Mansfield
Images for Plot 34 The Willow High Oakham Ridge, Mansfield
Images for Plot 34 The Willow High Oakham Ridge, Mansfield
Images for Plot 34 The Willow High Oakham Ridge, Mansfield
Images for Plot 34 The Willow High Oakham Ridge, Mansfield
Images for Plot 34 The Willow High Oakham Ridge, Mansfield
Images for Plot 34 The Willow High Oakham Ridge, Mansfield
Images for Plot 34 The Willow High Oakham Ridge, Mansfield

How much is your
property worth?

Book a Valuation