View Location

For Sale
3 bedroom
House - Detached

Save to shortlist Remove from shortlist

High Oakham Hill, Mansfield
£390,000

3 2 1

LIVING THE DREAM!... This brand-new three-bedroom detached home offers a modern and versatile layout, providing the perfect blank canvas to create your dream home. Finished in a neutral style, it is designed to suit a variety of lifestyles while offering generous living space throughout. On...

High Oakham Hill, Mansfield
£390,000

LIVING THE DREAM!... This brand-new three-bedroom detached home offers a modern and versatile layout, providing the perfect blank canvas to create your dream home. Finished in a neutral style, it is designed to suit a variety of lifestyles while offering generous living space throughout. On entry, you are welcomed by a spacious living room, an ideal retreat for relaxing evenings and family gatherings. To the rear of the property lies the impressive open-plan kitchen and dining room. The kitchen is fitted with ample cabinetry and extensive worktop surfaces, perfectly combining practicality with style. The dining area provides plenty of space for furnishings and entertaining, enhanced by double doors opening directly onto the garden, allowing for seamless indoor–outdoor living. A separate utility room and ground-floor WC further add to the home’s functionality. Upstairs, there are three well-proportioned bedrooms. The master bedroom enjoys its own private en-suite shower room, while the remaining bedrooms are served by a modern family bathroom, offering convenience for the whole household. Externally, the front of the property benefits from a garage and driveway, ensuring ample off-street parking. To the rear, the garden has been thoughtfully designed with a patio seating area, a laid lawn, and secure fencing, creating a safe and versatile outdoor space for relaxation, play, or entertaining. This stylish and practical home is ideal for families, couples, or anyone seeking a modern property with room to grow. With its combination of spacious interiors, thoughtful layout, and outdoor amenities, it offers everything needed to enjoy contemporary living at its best. Call today to view!!!


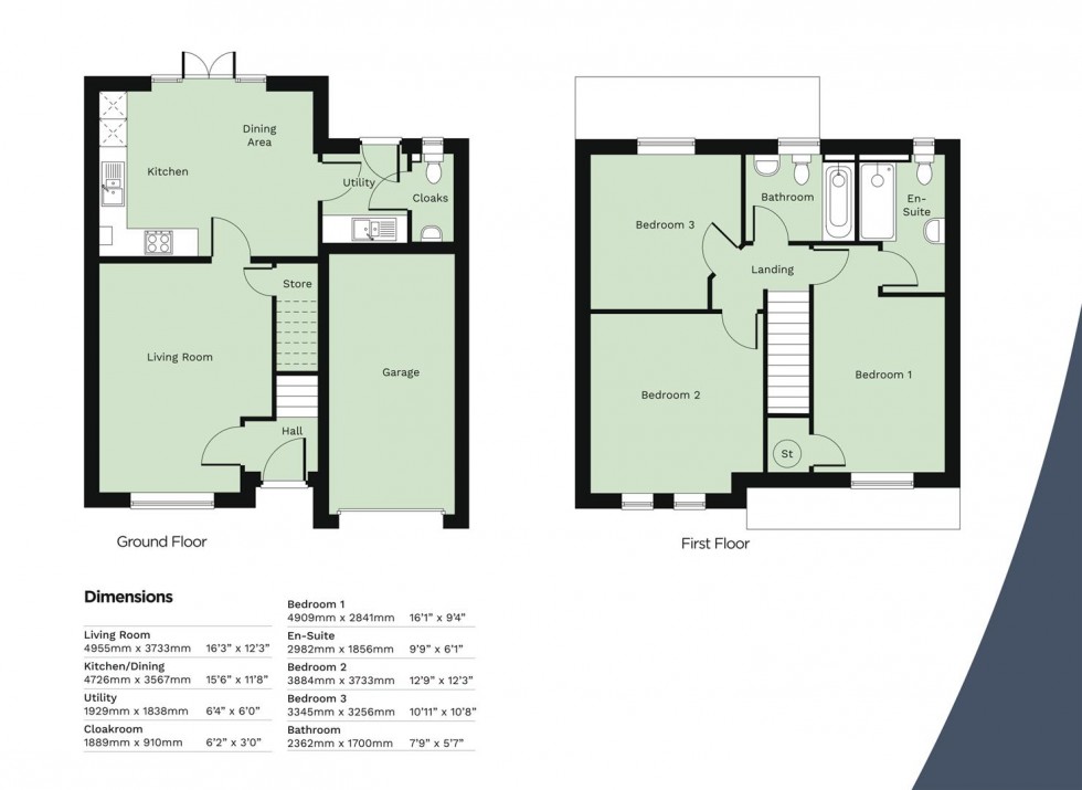
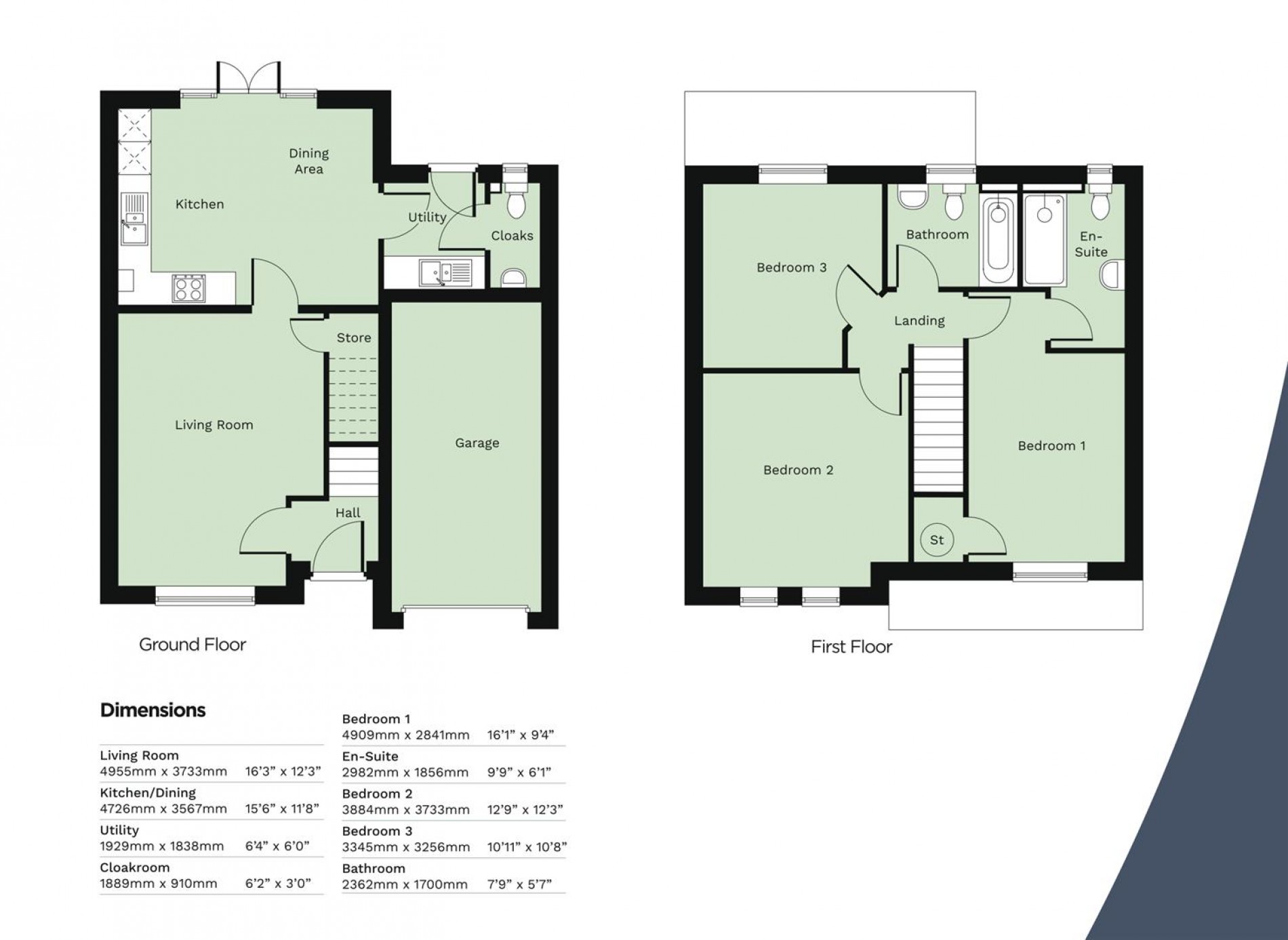
Living Room (4.95m x 3.73m)

Spacious room, with a central heating radiator, built in storage cupboard, window to the front elevation and a door providing access into the kitchen/ dining room.

Kitchen/ Dining Room (4.72m x 3.56m)

The kitchen is complete with a range of matching cabinetry and ample worktop surfaces. It features an inset sink and drainer, integrated eye level double oven, electric hob with hood over and space for appliances. With ample space for your dining furniture, central heating radiator, windows and double doors to the rear elevation. This room also allows access into the utility room.

Utility Room (1.93m x 1.83m)

With further cabinetry and worktop surfaces, inset sink and drainer and space for appliances. With a door to the rear elevation and a door providing access into the WC.

WC (1.88m x 0.91m)

Complete with a low flush WC and a hand wash basin.

Landing

With access into;

Bedroom one (4.90m x 2.84m)

With a central heating radiator, window to the front elevation, storage cupboard and its own en-suite facility.

En-suite (2.97m x 2.06m)

Complete with a three piece suite including a shower, low flush WC and a hand wash basin. With a window to the rear elevation.

Bedroom Two (3.89m x 3.73m)

With a central heating radiator and windows to the front elevation.

Bedroom Three (3.33m x 3.25m)

With a central heating radiator and a window to the rear elevation.

Bathroom (2.36m x 1.70m)

Complete with a three piece suite including a bath with an over head shower, low flush WC and a hand wash basin. With a window to the rear elevation.

Outside

The front of the property benefits from a garage and driveway, providing ample off-street parking. The rear garden hosts a patio seating area, laid lawn and surrounding fences.

Images for High Oakham Hill, Mansfield
Images for High Oakham Hill, Mansfield
Images for High Oakham Hill, Mansfield
Images for High Oakham Hill, Mansfield
Images for High Oakham Hill, Mansfield
Images for High Oakham Hill, Mansfield
Images for High Oakham Hill, Mansfield
Images for High Oakham Hill, Mansfield
Images for High Oakham Hill, Mansfield
Images for High Oakham Hill, Mansfield
Images for High Oakham Hill, Mansfield
Images for High Oakham Hill, Mansfield
Images for High Oakham Hill, Mansfield
Images for High Oakham Hill, Mansfield
Images for High Oakham Hill, Mansfield
Images for High Oakham Hill, Mansfield
Images for High Oakham Hill, Mansfield
Images for High Oakham Hill, Mansfield
Images for High Oakham Hill, Mansfield
Images for High Oakham Hill, Mansfield
Images for High Oakham Hill, Mansfield
Images for High Oakham Hill, Mansfield
Images for High Oakham Hill, Mansfield
Images for High Oakham Hill, Mansfield
Images for High Oakham Hill, Mansfield
Images for High Oakham Hill, Mansfield
Images for High Oakham Hill, Mansfield
Images for High Oakham Hill, Mansfield
Images for High Oakham Hill, Mansfield
Images for High Oakham Hill, Mansfield
Images for High Oakham Hill, Mansfield

How much is your
property worth?

Book a Valuation