View Location

For Sale
0 bedroom
Land

Save to shortlist Remove from shortlist

Ernest Road, Carlton, Nottingham
Guide Price £160,000

0 0 0

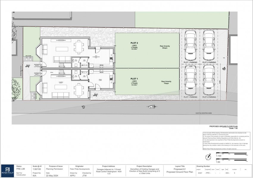
FULL PLANNING PERMISSION GRANTED!... GUIDE PRICE £160,000 - £170,000 A superb development opportunity on Ernest Road, Carlton, Nottingham. The site currently consists of a block of garages and comes with full planning consent (Ref: 2024/0549 – Gedling Borough Council) for the...

Ernest Road, Carlton, Nottingham
Guide Price £160,000

FULL PLANNING PERMISSION GRANTED!... GUIDE PRICE £160,000 - £170,000 A superb development opportunity on Ernest Road, Carlton, Nottingham. The site currently consists of a block of garages and comes with full planning consent (Ref: 2024/0549 – Gedling Borough Council) for the construction of two/three-bedroom homes. Situated in a popular and well-connected area, the plot benefits from close proximity to local amenities, schools, and transport links providing easy access to Nottingham city centre. Ideal for both experienced developers and those looking to embark on their first project, this plot presents the chance to deliver high-quality homes in a thriving residential area. Offering a rare blend of potential, practicality, and location, this is a development not to be overlooked. Secure your opportunity to bring a new vision to life on Ernest Road, where convenience meets community, and potential meets promise. For further details or to discuss the opportunity, please contact the office today!


Gross Development Value

Our helpful negotiators will be more than happy to discuss any potential income to be made on your purchase of this plot, with advise from our expert valuers.

Planning Permission

REF: 2024/0549
Gedling Council
Demolition of Existing Garages and Erection of New Build comprising of 2 x 3 Bed Units

Images for Ernest Road, Carlton, Nottingham
Images for Ernest Road, Carlton, Nottingham
Images for Ernest Road, Carlton, Nottingham
Images for Ernest Road, Carlton, Nottingham
Images for Ernest Road, Carlton, Nottingham
Images for Ernest Road, Carlton, Nottingham
Images for Ernest Road, Carlton, Nottingham
Images for Ernest Road, Carlton, Nottingham
Images for Ernest Road, Carlton, Nottingham

How much is your
property worth?

Book a Valuation