View Location

For Sale
2 bedroom
Park home

Save to shortlist Remove from shortlist

74, Riverdale Park, Staveley
£155,000

2 1 2

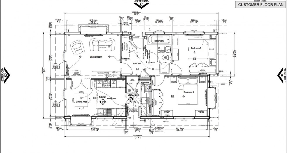
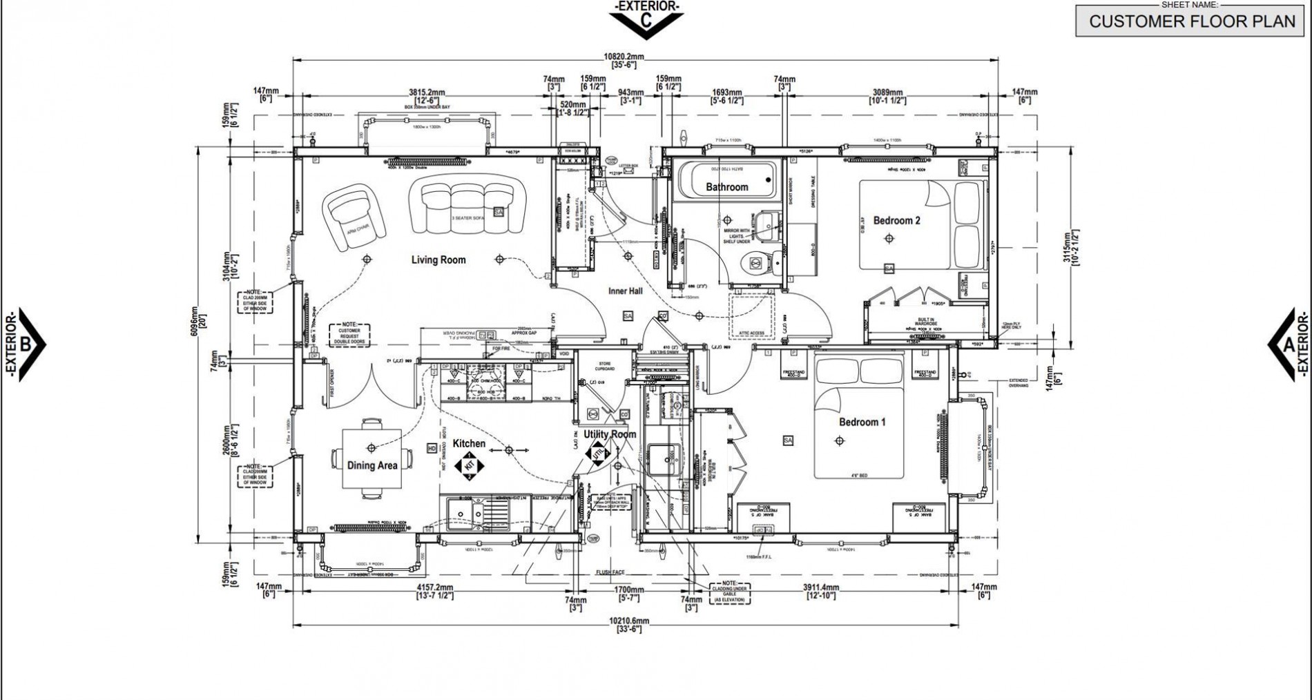
PLOT WITH STACKS OF POTENTIAL... This newly planned home will offer two generously sized bedrooms, a bright and inviting living room, a well-appointed kitchen, and a spacious bathroom (or shower room, pending final decision). Interior selections remain open—whether you prefer a crisp white...

74, Riverdale Park, Staveley
£155,000

PLOT WITH STACKS OF POTENTIAL... This newly planned home will offer two generously sized bedrooms, a bright and inviting living room, a well-appointed kitchen, and a spacious bathroom (or shower room, pending final decision). Interior selections remain open—whether you prefer a crisp white or elegant grey kitchen, and whether the furnishings and textiles lean modern and sleek or embrace a more traditional, timeless style. With the structure yet to be built, this presents an exciting opportunity to customise the finishes and make it truly your own. A south-facing, level-access stone slab sun terrace with a parapet wall is just one element of the landscaping package included in the price. Contact us today to learn more and secure this exciting opportunity. 01246 605121


Living Room

Not yet built, design your own

Kitchen/Dining

Not yet built, design your own

Bedroom One

Not yet built, design your own

Bedroom Two

Not yet built, design your own

Bathroom

Not yet built, design your own

Utility

Not yet built, design your own

Images for 74, Riverdale Park, Staveley
Images for 74, Riverdale Park, Staveley
Images for 74, Riverdale Park, Staveley
Images for 74, Riverdale Park, Staveley
Images for 74, Riverdale Park, Staveley

How much is your
property worth?

Book a Valuation